
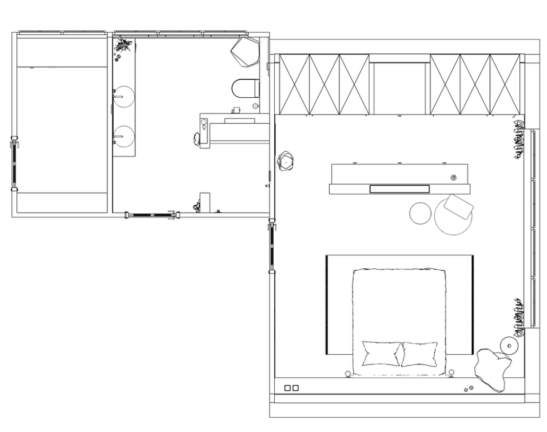
WOONBOERDERIJ HIERDEN
Voor deze gigantische badkamer en slaapkamer mocht ik een nieuw ontwerp maken.
Een aantal wensen:
- Ruimtelijke uitstraling
- Landelijk interieur met kleur
- Sunshower in de douche of een bad met bubbels
Omdat de ruimte zo groot is had de klant geen idee waar te beginnen. Met fases 1 tot en met 3 heb ik laten zien hoe de bovenverdieping eruit kan komen te zien, zodat de klant alle opties kon overzien.
Het resultaat is een rustige, lichte basis met warme houten accenten en warme kleuren.












Let op: dit zijn gerenderde impressies van hoe de ruimte eruit kan komen te zien. Het interieur is nog niet gerealiseerd.

